Exclusivitate! Apartament cu vedere spectaculoasa spre Tampa

Pret 99.900€

Descriere apartament

Va propun in exclusivitate un apartament de doua camere  situat pe Calea Bucuresti, la doar cativa pași de Piata Astra, un apartament care imbina perfect confortul urban cu farmecul unei privelisti montane.

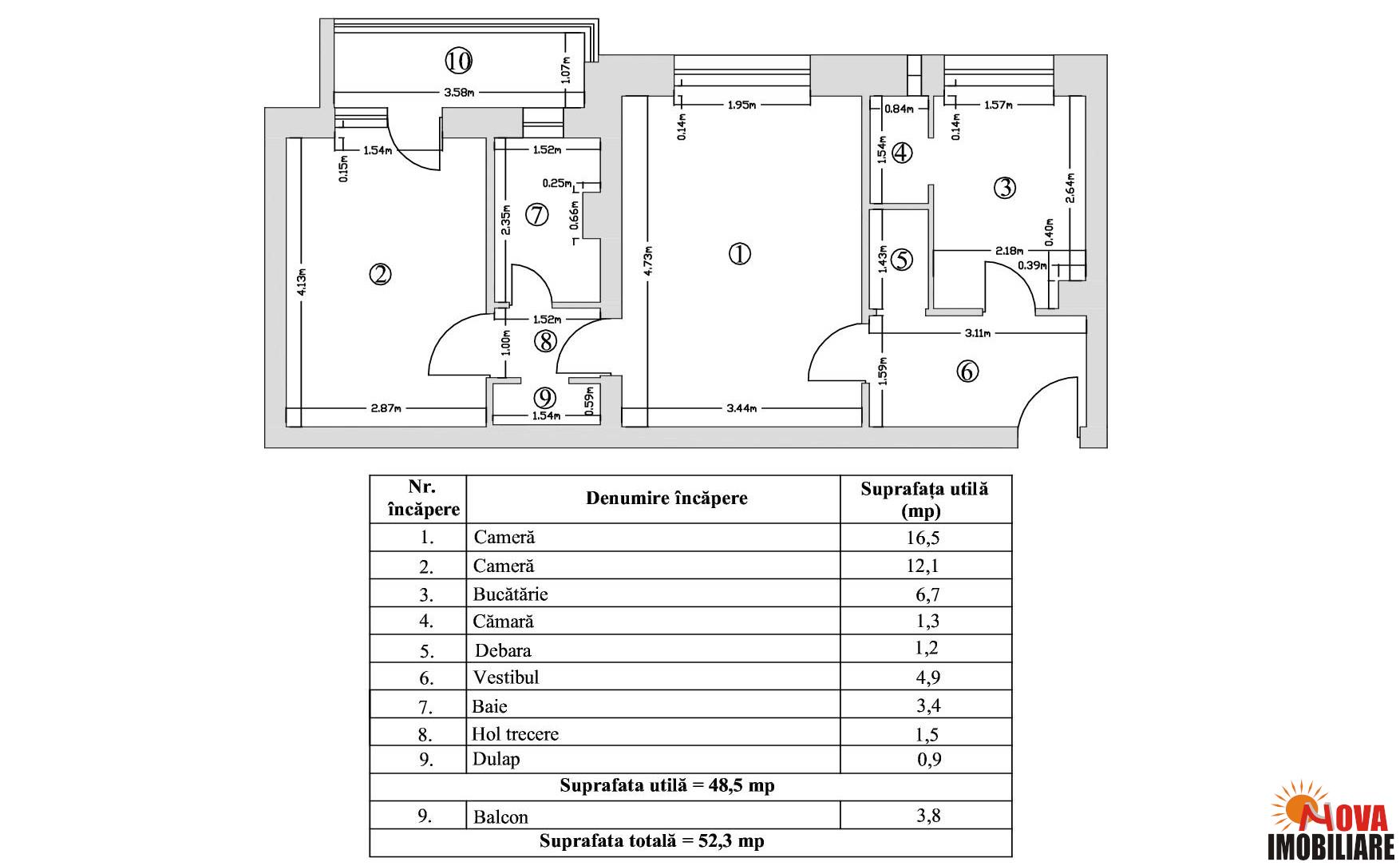
Apartamentul cu o structura semidecomandata, are o suprafata totala de  52.3 mp (48,5 mp suprafata utila a apartamentului,  completată de un balcon de 3,8 mp,) si este compartimentat astfel : doua camere, bucatarie cu camara si debara, doua holuri, baie, dormitor si balcon. Apartamentul este pozitionat la etajul 4 al unui imobil cu 4 etaje.(fara probleme cu izolatia) 

Orientarea sud-vestică oferă lumina naturala din plin pe tot parcursul zilei, iar vederea deschisa catre Tampa transforma fiecare dimineata si apus într-un spectacol.

Locuinta este ingrijita, primitoare si se vinde mobilata, fiind gata pentru mutare imediata. Beneficiaza de: izolatie exterioara, pentru un confort termic sporit, ferestre termopan, centrala termica proprie, aer conditionat, parchet, gresie, faianta si rulouri exterioare.

Pozitionarea este un real avantaj: statia de autobuz chiar în fata blocului, scoli, magazine, piata farmacii si toate facilitătile necesare vietii de zi cu zi se afla la cateva minute distanta.

Este un apartament care te cucereste prin lumina, priveliste si stare de bine — ideal atat pentru locuit, cat si pentru investitie, într-o zona cu cerere constanta.

Comision agentie : 2% din pretul de vanzare.

 

Caracteristici generale apartament

  • Acces:
    Mixt
  • Acces internet:
    Cablu
  • Aer Conditionat:
    Aer Conditionat
  • Balcoane:
    Termopan
  • Bucatarie:
    Da
  • Calorifere:
    Da
  • Clasa Energetica:
    B
  • Contorizare:
    Contor electric Contor gaz Apometre
  • Destinatie:
    Locuinta
  • Dotari:
    Rulouri Aer Conditionat
  • Electrocasnice:
    Aragaz Frigider
  • Ferestre:
    PVC
  • Geam baie:
    Da
  • Incalzire:
    Centrala proprie
  • Izolatii termice:
    Exterior
  • Mobilat:
    Complet
  • Pereti:
    Lavabil Faianta
  • Podele:
    Gresie Parchet
  • Strazi:
    Asfaltate
  • Structura Casa:
    Beton
  • Tip Bloc:
    Bloc
  • Tip Structura Bloc:
    Cadre
  • Usa intrare:
    Metal
  • Usi:
    Din Lemn
  • Utilitati:
    Curent Apa Gaz
  • Vecinatati Spatii:
    Autobuz Zona comerciala Piata
  • Vedere:
    Fata

Localizare

Oferte similare